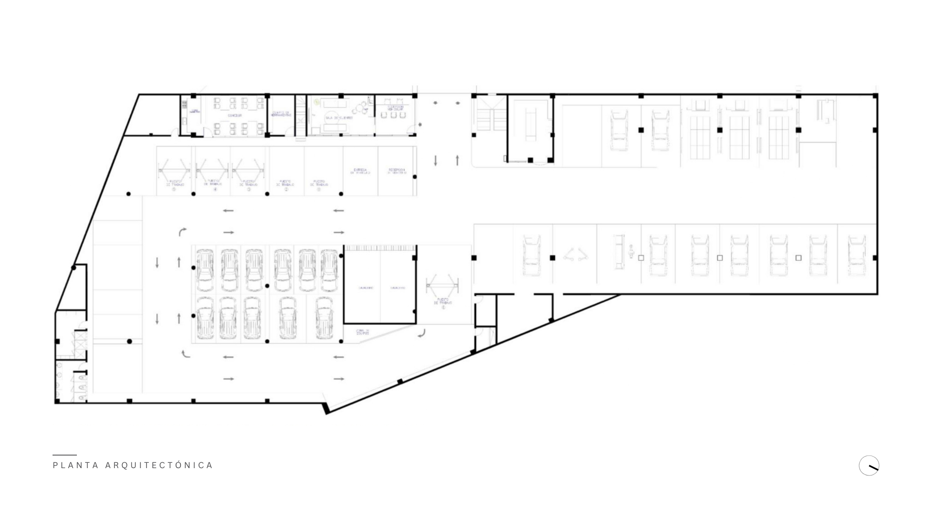
Este proyecto consistió en la remodelación completa de un concesionario Toyota, abarcando tanto intervenciones estructurales como la renovación de acabados interiores y exteriores. Se diseñaron muebles a medida adaptados a las necesidades operativas y estéticas de la marca.Mi rol incluyó el desarrollo del diseño arquitectónico y de interiores, la coordinación de detalles técnicos y la supervisión directa del proceso constructivo, asegurando la correcta ejecución de las propuestas.

Anterior
Anterior

Silla Kerra

Siguiente
Siguiente

Vajillas Festum